logo
réalisations
activités tertiaires et commerciales
FONDATION DE FRANCE SIÈGE SOCIAL AMÉNAGEMENT DE BUREAUX | 1999
Fondation de France - Aménagement des bureaux du siège social (Paris 8e, 1999)
Fondation de France - Aménagement des bureaux du siège social (Paris 8e, 1999)
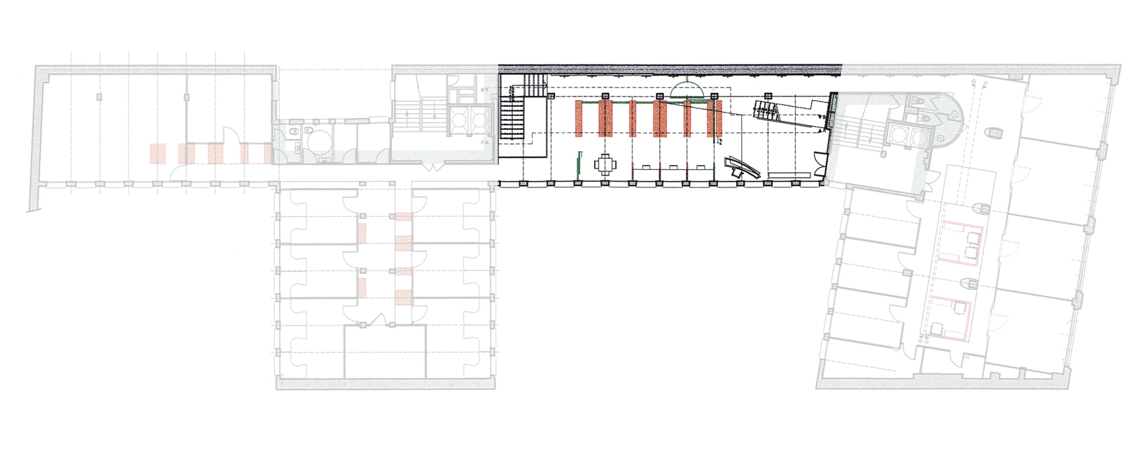
Plan du niveau 4
Plan du niveau 4
Vue en coupe longitudinale
Vue en coupe longitudinale
Pointe de lune
Pointe de lune
Circulation intérieure
Circulation intérieure
Immeuble années 60. Aménagement de bureaux en trois tranches.
Concours, projet lauréat.
Space Planning, Maitrise d’oeuvre mission complète & OCP.
Montant des travaux : 1,9 M€ TTC.


Crédits Photos, P. Maurein et J. Villain


Cliquez sur le bouton "Téléchargement" pour télécharger une fiche complète au format PDF